
The design captures the essence of beauty and sophistication, aligning with the chic and modern aesthetic of the salon.
Category
Commercial
Year
2022
Location
Shastri Nagar, Ghaziabad
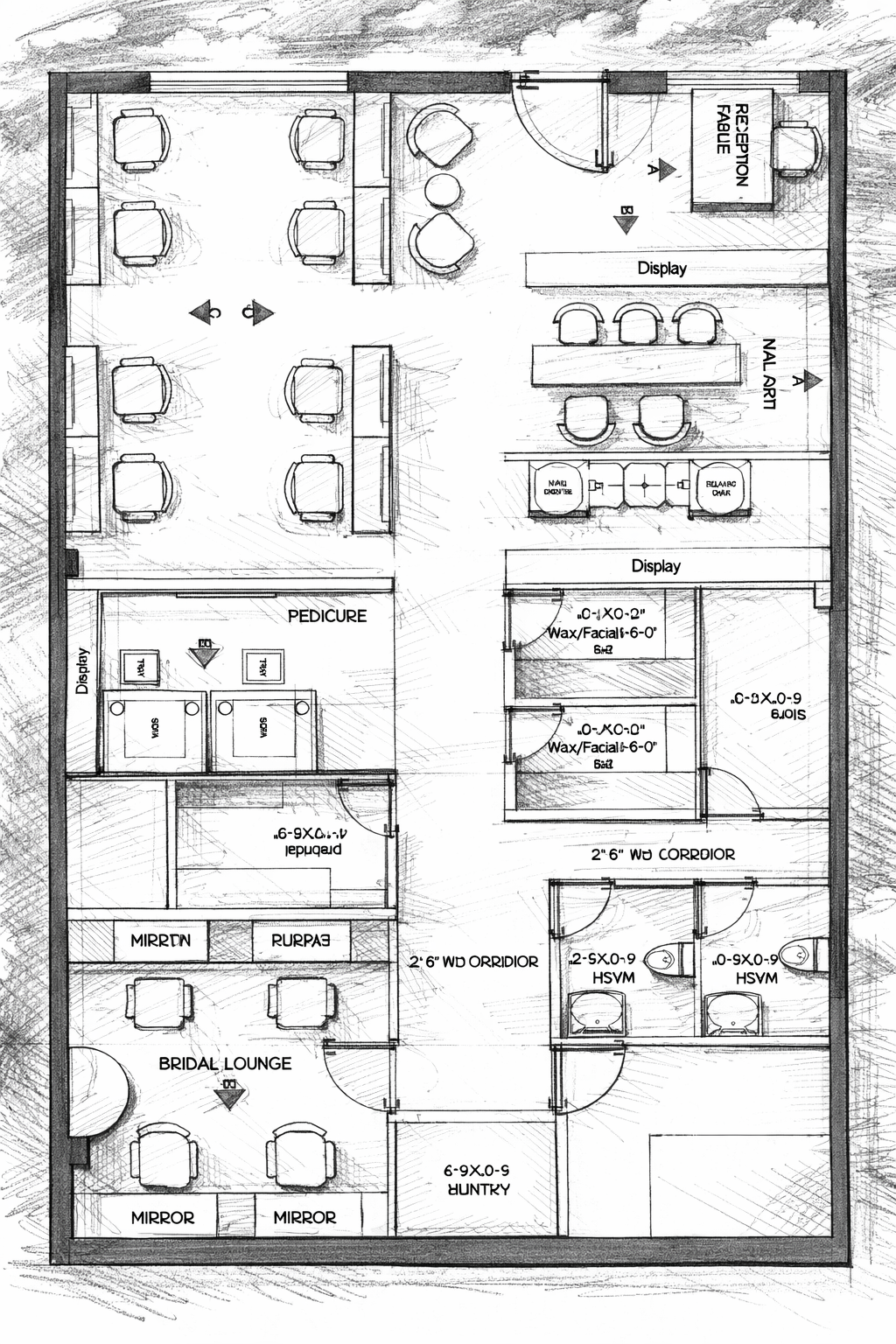
A 1000 sq. ft. column-free space is ideal for a salon, offering a spacious, open layout perfect for creating an inviting and luxurious atmosphere. Positioned on a main road in a vibrant residential area, it ensures high visibility and convenient access for local clients. The unobstructed floor plan allows for flexible design possibilities.
The client envisioned a premium salon with high ceilings and dedicated, semi- private zones for hair, skincare, and nails. The design prioritizes privacy and a luxurious experience, with tailored lighting and furnishings that create an inviting, exclusive atmosphere focused on exceptional service.
We designed a plush salon with a functional layout, blending pink, white, and gold tones. This colour palette adds elegance and warmth, while the thoughtfully arranged space ensures both style and practicality, enhancing the overall client experience.
The biggest challenge was crafting a layout that maximized distinct utility spaces within the salon. Each area was carefully planned to provide distinct zones for different services, ensuring both functionality and privacy without compromising the salon's luxurious feel.